Jos Bedaux
Bedaux de brouwer 0587 woonhuis verwaest turnhout fullscreen

Woonhuis Verwaest, Turnhout | 1961

Dit woonhuis ligt aan een zijstraatje van de steenweg. Het voorterrein is verhard. Een bijgebouw is met een pergola en muur aan het huis verbonden. De voorgevel oogt niet direct als een ‘Bedaux’. De zware natuurstenen omlijsting van de getoogde kloosterachtige voordeur en de trapeziumvormige dakkapellen wijken af van de gangbare detaillering. Raamvormen, luiken, lantaarn, dakruiter met windvaan en de witgesausde gevels bieden weer een vertrouwd beeld. De L-vormige hoofdvorm, de rode leipannen op het dak en het contrast tussen de gesloten voorgevel en de veel opener tuingevels vormen eveneens bekende kenmerken.

Bijzonder is de inkomsthal zoals de Vlaming mooi zegt. Achter de voordeur ervaar je meteen de tuin door een grote glazen pui. Ook het traliehek is hier opvallend. Dat geldt ook voor de trapeziumvorm van de dakkapellen. Deze werden door Bedaux weinig toegepast.

Bedaux de brouwer 0587 woonhuis verwaest turnhout tuindeur
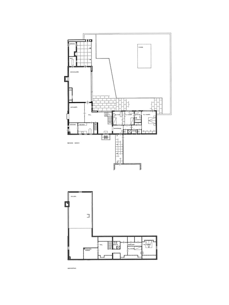
Bedaux de brouwer 0587 woonhuis verwaest turnhout plattegrond
Bedaux de brouwer 0587 woonhuis verwaest turnhout achtertuin

Projectgegevens

Opdrachtgever Dhr. Verwaest
Ontwerp 1961
Fotografie Archief Bedaux