
Woonhuis Jurgens, Tilburg | 1948
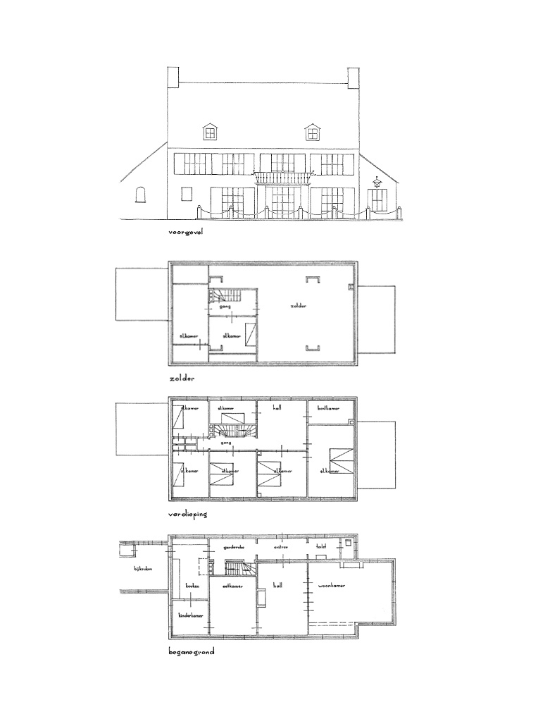
Een bestaand landhuis van de architecten Machen en Erbizal uit 1923 werd door Bedaux rigoureus verbouwd. De oorspronkelijke opzet is onherkenbaar. Alleen het hoofdvolume van twee lagen werd behouden. Het kreeg een zadeldak, de beide aanbouwen een lessenaarsdak. De ramen aan de zuidkant werden vervangen door dubbele openslaande deuren met louvreluiken. Een balkon werd toegevoegd, ondersteund door zware kolommen, die een soort portico vormen naar de hal. De hoofdentree ligt echter aan de noordzijde. Bedaux maakt de oorspronkelijk symmetrische gevels asymmetrisch door verschillende raamvormen toe te passen en de rooilijnen van de aanbouw aan te passen. Met de toevoeging van kleine dakkapellen, lantaarns, siersmeedwerk, stoeppalen met kettingen als terrasbegrenzing en bovenal door het witverven van de gevels transformeert hij het landhuis tot een onmiskenbare ‘Bedaux’.
Het ontwerp laat al de overgang van zijn romantisch-traditionele stijl naar een meer classicistische stijl zien. Op zo’n honderd meter vanaf de Bredaseweg oogt het door de open zichtlijn als een bijzonder fraai landhuis. De tuin is ontworpen door tuinarchitect Hasselman.



Projectgegevens
Opdrachtgever | Jurgens |
Ontwerp | 1948 |
Fotografie | Archief Bedaux |